









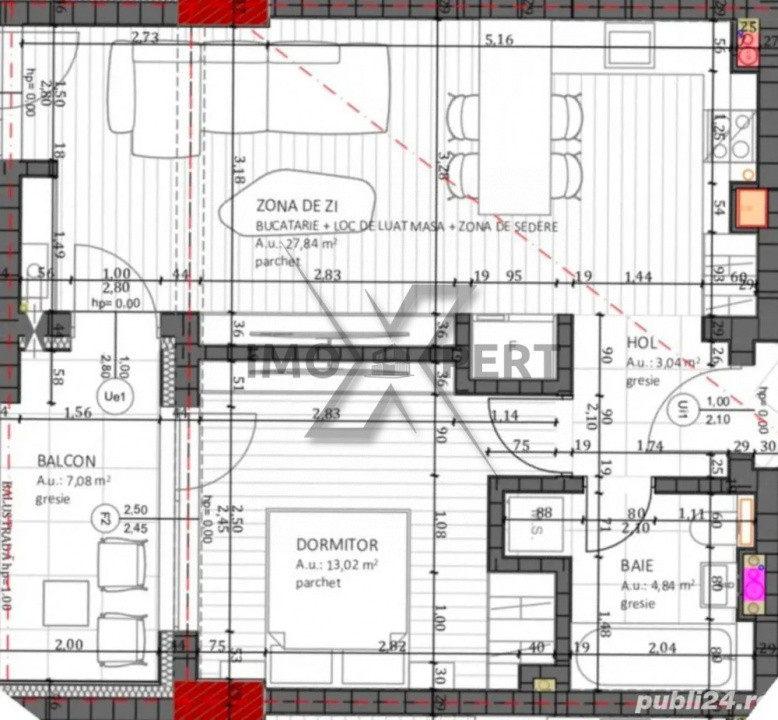
Apartament cu două camere, complet finisat, la etajul 3 dintr-un bloc nou construit în 2025, în zona reprezentanței BMW. Suprafață utilă de 49 mp plus balcon de 7 mp, cu orientare sud-vest și lumină naturală pe tot parcursul zilei.
Compartimentarea cuprinde living cu bucătărie, dormitor, baie și hol. Încălzirea se face în pardoseală pe toată suprafața apartamentului. Balconul este hidroizolat, cu plăci ceramice și balustradă din sticlă. Izolația exterioară este realizată cu vată minerală bazaltică, iar tâmplăria are profil de 7 camere cu 3 foi de sticlă. Blocul dispune de 2 lifturi, interfon și supraveghere video. Loc de parcare subterană disponibil opțional la 15.000€. Vă așteptăm la vizionare.