







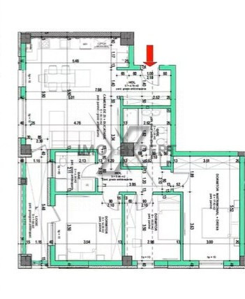
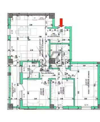
Vă oferim spre vânzare un apartament modern, finisat și utilat la cheie, situat la etajul 2 din 8, într-un ansamblu rezidențial apreciat pentru poziționare și calitate.
Locuința are o suprafață utilă de 94 mp și este compartimentată eficient: 3 dormitoare, 2 băi, living spațios cu bucătărie open-space și balcon.
Apartamentul se vinde complet mobilat și utilat, fiind pregătit pentru mutare imediată. Zona oferă acces rapid la centre comerciale, restaurante, mijloace de transport și alte facilități urbane.
Parcare in subsolul blocului inclusa in pret.
Pentru detalii suplimentare și programarea unei vizionări, nu ezitați să ne contactați.